Ramiola – Villa a schiera con 3 camere, giardino e garage

Ramiola, via Benedetto Croce
  • € 235.000,00
  • 5 locali
  • 151 superficie
  • 3 bagni
  • Più livelli piani

Descrizione

A Ramiola proponiamo una deliziosa villetta a schiera centrale costruita nel 1998, in ottimo stato di conservazione.
La villetta si articola su due livelli abitativi, oltre a un comodo seminterrato.
All’ingresso, accolti da un piccolo giardino con portico, si accede al piano terra di circa 68 mq, dove troviamo un ampio soggiorno con camino, una cucina abitabile con balcone e un bagno.
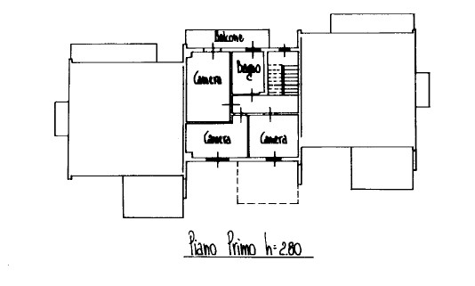
Una scala interna in muratura conduce al piano superiore, di circa 60 mq, dove si trovano tre camere da letto, di cui due matrimoniali, balcone e un secondo bagno.
Il seminterrato, anch’esso raggiungibile tramite scala interna in muratura, ospita una spaziosa cantina, una pratica lavanderia e un comodo garage.
Questa villetta rappresenta una soluzione ideale per chi cerca indipendenza, spazio e la tranquillità delle colline parmensi, senza rinunciare alla comodità di ambienti ben distribuiti e in ottimo stato.
La nostra agenzia immobiliare, da più di 20 anni, è specializzata nella vendita e locazione di immobili residenziali e commerciali. Siamo convinti di poterti aiutare a vendere la tua casa in tempi rapidi e al miglior prezzo possibile. Per saperne di più, contattami al numero 393/0441848 o all'indirizzo email info@bardinierossi.it.


Caratteristiche Unità

  • Tipologia:Villa / Villetta
  • Totale Piani Stabile:3
  • Garage:Singolo
  • Posto auto:Scoperto
  • Spese condominiali vendita:
  • Numero di Unità Condominio:
  • Cucina:Abitabile
  • Cantina:Si
  • Giardino:Privato
  • Data disponibilità:
  • Stato manutenzione:Ottimo

Informazioni Generali

  • Anno di Costruzione:1998
  • Classe Energetica:
  • Categoria Catastale:
  • Rendita Catastale:

Dotazioni

  • Riscaldamento:Autonomo
  • Diffusione Riscaldamento:Radiatori
  • Aria Condizionata:Predisposto
  • Serramenti:
  • Pavimentazione:
  • Canna Fumaria:Si
  • Impianto d'allarme:
  • Porta Blindata:Si
  • Videocitofono:

Servizi e Parti Comuni

  • Ascensore:
  • Cortile/Piazzale:


Mappa Interattiva

Video

Ti è piaciuto questo immobile?

Compila i campi qui sotto e chiedi una valutazione del tuo!